Trilocale in vendita

Ferrara, Via della Canapa
€ 299.000
3 locali 3 locali
100 Mq 100 Mq
2 bagni 2 bagni

Trilocale in vendita

Ferrara, Via della Canapa

Descrizione annuncio

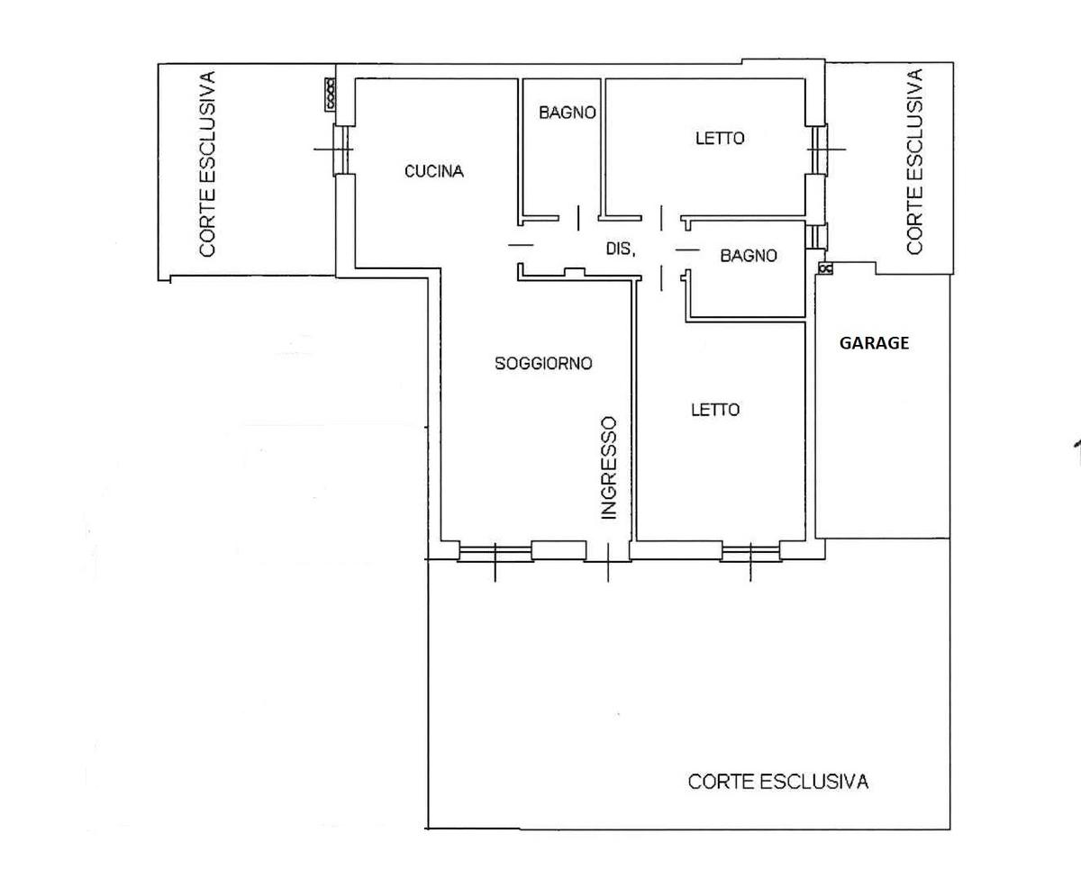
FERRARA: ZONA VIA CANAPA: Trilocale interamente al piano terra di recente edificazione in ottimo stato manutentivo, con ingresso indipendente e così composto : ingresso su zona pranzo/soggiorno di circa 23mq comunicante con la cucina abitabile, disimpegno, 1 camera da letto matrimoniale, 1 camera da letto doppia, 2 bagni entrambi con doccia (1 finestrato e 1 cieco), garage e 3 corti esclusive 2 con pavimentazione in porfido e 1 con prato sintetico. Data la recente edificazione l'immobile presenta un buon numero di accessori quali: porta blindata, scuri in alluminio, infissi in legno con doppio vetro e apertura a vasistas, zanzariere, impianto di allarme, raffrescamento e riscaldamento a pavimento, impianto fotovoltaico da 4,5 kW, serbatoio acqua piovana, deumidificatore integrato, cappotto termico. Climatizzazione a 1 split con funzione pompa di calore. Garage con basculante elettrica. Utenze autonome e impianti certificati. Classe energetica A4.

Mostra tutto

Nelle vicinanze

Trasporto pubblico Trasporto pubblico
Ferrara
Ferrara
1,5 Km
stazione di Pontelagoscuro
stazione di Pontelagoscuro
2,1 Km
Canapa - Scuole
Canapa - Scuole
10 m
Canapa - Parco Bassani
Canapa - Parco Bassani
160 m
Ricariche auto elettriche Ricariche auto elettriche
LIDL Ferrara Po
1,2 Km
EnelX EVA+ ACI Ferrara
1,3 Km
Eneldrive Casa del Bambino
1,3 Km
Eneldrive Poste
1,4 Km
Eneldrive Parcheggio Via del Lavoro
1,6 Km
Scuole Scuole
Facoltà di Giurisprudenza
1,2 Km
Scuola elementare Matteo Maria Boiardo
1,4 Km
Centro studi biomedici applicati allo sport
1,4 Km
Facoltà di Scienze Matematiche, Fisiche e Naturali
1,5 Km
Dipartimento di Fisica e Scienze della Terra
1,5 Km
Farmacia Farmacia
Barco
740 m
La Porta degli Angeli
760 m
Arianuova
950 m
Forlani
1,1 Km
San Benedetto
1,2 Km
Ospedali Ospedali
Centro di Medicina dello Sport
530 m
Casa di cura "Salus"
1,0 Km
Azienda USL di Ferrara
1,6 Km
Città della Salute "Cittadella San Rocco"
2,7 Km
Supermercati Supermercati
Punto Simply
870 m
EuroSpin
890 m
Conad City
1,1 Km
Lidl
1,2 Km
Despar
1,2 Km
Negozi Negozi
Pasticceria Ferrara
910 m
Panificio Dellepiane
1,5 Km
Slam Jam Outlet
1,7 Km
Il salotto del pane
1,7 Km
La bottega del pane
1,8 Km
Bar Bar
Bar Il covo
700 m
Bolla Bar
900 m
Discoteca College
980 m
Caffè "Violetta"
990 m
Enoteca Bar "L'Acino"
1,1 Km
Ristoranti Ristoranti
Pizzeria Hurly Burly
410 m
Pizzeria Ristorante "Partenope"
940 m
Hong Ye
970 m
Trattoria "Carpe Diem"
1,0 Km
Pizzeria "La Tana del Lupo"
1,0 Km
Mostra tutto

Caratteristiche

Rif.:
61178225
Piano:
1 di 1 (Piano terra con giardino)
Box:
1
Camere da letto:
2
Arredamento:
Parziale
Condizionamento:
Autonomo
Mostra tutto
Prezzo Prezzo
€ 299.000
Rata mutuo Rata mutuo
€ 1.409 / mese
Proponi il tuo prezzoProponi il tuo prezzo

Classe Energetica

A4
A4
A4
A4
A4
A4
A4
A4
A4
EP globale non rinnovabile:
6.24 kW h/m² anno
EP globale rinnovabile:
44.92 kW h/m² anno
EP invernale del fabbricato:
EP estiva del fabbricato:
Anno di costruzione:
2021
Riscaldamento:
Autonomo
Tipo impianto:
A pavimento
Tipo alimentazione:
Metano

Ti interessa visionare l'immobile?

Fissa un appuntamento  Fissa un appuntamento

Richiedi informazioni

Clicca su Leggi per aprire l'informativa
* Questi campi sono obbligatori

Calcola il tuo mutuo

Semplice e senza impegno
Anticipo

( % )
Mutuo

( % )

pochi semplici passi

inserisci i tuoi dati
Questionario completato
Grazie per aver richiesto un appuntamento senza impegno con un nostro Consulente del Credito e Assicurativo.

Hai inserito correttamente tutti i dati necessari e a breve riceverai una e-mail con un link da convalidare per inviare i tuoi dati.
Affiliato
Studio Sorgente Srlsu
Via Comacchio, 10/12 44124 Ferrara (FE)

Il nostro staff


  • Riccarda Scaramelli
    Affiliata

  • Federico Giacometti
    Responsabile
Via Comacchio, 10/12 44124 Ferrara (FE)
Zona: San Giorgio - V. Fulvia - Quacchio - Frutteti - B. Punta
Mostra su mappa
Orari: mattina 9.00/13.00 - pomeriggio 15.30/19.30 sabato chiusura alle 13.00
Affiliato
Studio Sorgente Srlsu
Via Comacchio, 10/12 44124 Ferrara (FE)

2026 Tecnocasa Franchising S.p.A. - P. IVA 08365160152 - Via Monte Bianco 60/A 20089 Rozzano (MI). Ogni agenzia ha un proprio titolare ed è autonoma. Privacy policy | Policy utilizzo | Cookie policy